En Alquiler
USD4.450
Oficina
Belgrano Imprenta Alquiler Piso Oficinas de Categoria Equipadas 225 m² 2 Coch
Código: 167292

Av. Luis María Campos 1059, C1426BOM Cdad. Autónoma de Buenos Aires, Argentina, Belgrano, Capital Federal, Argentina.

Compartir esta Propiedad

Descripción de la Propiedad

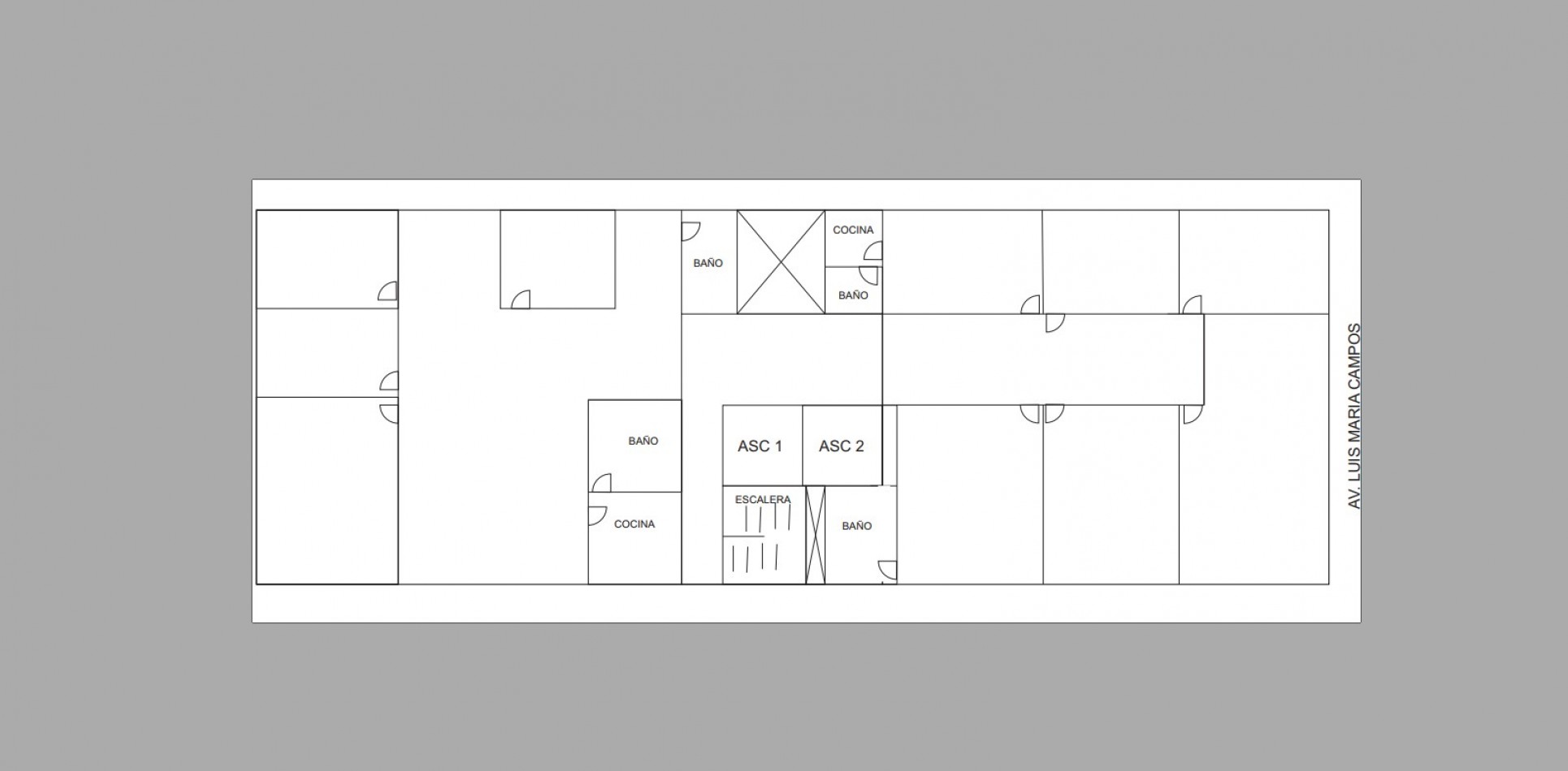
Belgrano – Alquiler Oficinas - Exclusiva y moderna planta de 225 m2 en sexto piso con 2 cocheras fijas super luminoso frente al parque de al embajada de Alemania en exclusivo edificio de oficinas con frente de courtain-wall, seguridad 24 horas, generador eléctrico y 2 ascensores automáticos. Espectacular ubicación en exclusiva zona del Shopping Solar de la Abadía – La imprenta sobre Avenida Luis María Campos entre Olleros y Gorostiaga. El piso se compone de dos semi pisos de oficinas, una al frente de 115 m2 y la otra al contra frente de 110 m2. ambas oficinas enfrentadas entre un hall / Palier que permite generar un amplio espacio de Recepción y espera. Cada oficina tiene su propio office, 2 baterías de baños Damas/Caballeros, su propio archivo y depósito. Aire acondicionado central Frio/Calor, pisos alfombrados en muy buen estado, cableado por zócalo ductos. Ambas oficinas están equipadas con múltiples divisiones en vidrio. Al frente 6 espacios (despachos y Sala de reunión), Al contra frente: sala de espera y Gran area de trabajo con puestos de trabajo armados con mobiliario, escritorios y sillas y 4 despachos / compartimientos. El precio del alquiler es más IVA. Muy accesible con todos los medios de transporte Público. Ubicado sobre Luis Maria Campo en tre las avenidas Libertador Cabildo Lacroze y próximo al centro comercial solar de la Abadí.
Nota importante: Toda la información y medidas provistas son aproximadas y deberán ratificarse con la documentación pertinente y no compromete contractualmente a nuestra empresa. Los gastos (expensas, abl) expresados refieren a la última información recabada oportunamente y a la confección del aviso y no necesariamente reflejan la importes actuales los cuales deberán confirmarse con el personal de nuestra empresa. Fotografías e información no vinculantes ni contractuales. Las fotos correspondientes a esta publicación son solamente a título informativo para entender dimensiones, distribución, equipamiento y características. Ley 5150 - Accesible para personas con movilidad reducida

Mas detalles
Expensas: $ 1500000
  • Aire acondicionado
  • Amoblado
  • Garage
  • Calefacción
  • Portones eléctricos
  • Seguridad 24hs.
  • Luminoso
  • Apto profesional
  • Servicios Compartidos
  • Agua Corriente
  • Cloacas
  • Electricidad
  • Tendido Eléctrico
  • TV por cable
  • Internet / Wifi
  • Grupo electrógeno
  • Vista Panoramica
  • Cochera
  • accesible para personas con movilidad reducida
  • Antigüedad 20 años
Ubicación